
或许你是一个不畏房价的当地人,又或许你是一个租客,无论身份为何,对于家的概念与要求从未改变。地方可以不用太大,但一定要迎合一个现代人的生活方式。现代人的生活方式是什么?
通过对单身/二人世界的年轻人的75份调查问卷进行分析:




我们得出以下结论:
● 他们常在家做饭,即使是单身公寓也需要厨房,这才像个家;
● 他们大多需要40-50寸电视,在家使用笔记本电脑;
● 他们需要大量的储物空间。
那么问题来了,在一个套内面积为19.6㎡的区域内,你如何同时满足一个现代人上述的种种需求:客厅、卧室、厨卫和一个足够强大的储藏功能。相信数字一出,各位脑中出现的一定是毫无秩序、各种堆砌的小房间,或者是充满各种折叠机关的房间。
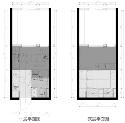
而我们布局出的极限小户型房子却是这样的:
极小户型方案一



我们希望能够尽可能的解决单身公寓生活的真实问题与需求。在高性价比的条件下,提供更为舒适的生活氛围。以此为标准进行空间设计:
在极限空间内全嵌入式无死角地利用空间解决收纳、储藏的大问题。
40-50寸的壁挂电视、年轻人的电脑和书桌、干湿分离的卫生间、完备的厨房和厨电、具有安全感实实在在的楼梯,不需要每天翻腾折叠的双人床。
抛弃以往利用错综复杂的折叠工序,昂贵的五金才可以满足功能需求的形式,让你尽可能方便的享受这个属于自己调调的窝,同时利用专业合理的配色技巧、空间分配让小变得不“小”,让居住感觉更像一个家,不以小为小。
功能齐备的厨房对于年轻人也是必备,坐榻满足平时娱乐与待客,家人或朋友来也能作为单人床使用。

沙发、大电视、电脑、书桌是娱乐与工作生活的必需品。
洗衣机、衣柜、鞋柜收纳,让家中物品都有自己的归属地。
实体模型板房研究
通过1:1模型搭建,体验实际空间尺度与使用感受。功能安排紧凑,面积虽小但均尽可能满足使用舒适便捷。


当然,不同年轻人对家居生活的需求不一致,因此,我们还有其它的解决方案。
极小户型方案二

重现方案二设计过程:

1.收纳功能细化:
完备的厨电系统,符合人体工程学尺寸并满足洗、切、炒等需求的橱柜设计及台面空间——橱柜也可作为储物空间使用。
2.在室内设置大量的储物柜,能满足调查问卷中业主的储物功能需求。同时储物柜的设置位置不会影响室内动线和人的正?;疃?/span>


3.设置集会客、用餐、办公功能为一体的多功能厅,满足业主日常起居的大部分需求,同时与业主的卧室空间隔离开来,保证业主的隐私。

4.卫生间内尺寸虽小,也没有使用任何造价高昂的五金材料,但是三件套配置齐全,满足日常盥洗需求。
5.卧室设置双人床垫,满足两人次就寝的功能。
6.通向二层卧室的楼梯采用可抽拉式,全嵌入式无死角地利用空间解决收纳问题,与储物柜形式相结合,节省室内空间。
极小户型的设计意义在于满足刚毕业的年轻人的居住及生活需求,它可能会是毕业生的首置房屋,也可能是作为酒店式公寓长期租用的房屋,是年轻人奋斗生活的开始。因此我们努力为他们营造一个舒适的、适于生活的空间,让他们把这个小屋子当做属于自己的第一个家。


当然,除了以上两种完美布局极小户型的方案,我们还有更多的方案待小P日后慢慢跟大家分享,一起期待吧~