新《建筑建筑面积计算规范》已经实施15个月了。新版规范变化非常大大,对当前很多“偷面积”的绝招有秒杀力,为让从事房地产研发工作的朋友不违反规范,不触红线,尽可能的偷面积。地产联盟特邀请最牛专家对《新建筑面积计算规范》进行逐条解读,希望大家喜欢:
第一部分:新面积规范编制原则
修订总体原则
1、 适用范围:增加了“建设全过程”。本次修订将适用范围扩大到建设全过程,规划、设计、施工、竣工结算等。但房屋产权面积不适用于本规范;
2、阳台面积计算以主体结构为主的原则;
3、可以利用(不论设计是否明确利用)的建筑空间都计算建筑面积,取消设计加以利用的说法;
4、一般计算原则:本规范中,一般的取定顺序是:有围护结构的,按围护结构计算面积;有底板的无围护结构(有围护设施),按底板计算面积(室外走廊、架空走廊);底板也不利于计算的,则取顶盖(车棚、货棚等)。主体结构外的附属设施按结构底板计算面积;
5、本规范涉及的所有建筑部件,均应符合国家现行设计、施工、质量、安全等规范的要求。
第二部分:新面积规范修订的内容
1.增加了建筑物架空层,取消了深基础架空层面积计算;
2.取消了有永久性顶盖的面积计算,增加了无围护结构有围护设施的面积计算规定;
3.修订了落地橱窗、门斗、走廊等的面积计算规定;
4.增加了飘窗的建筑面积计算要求;
5.修订了围护结构不垂直于水平面而超出底板外沿的建筑物的面积计算规定;
6.删除了原室外楼梯强调的有永久性顶盖的面积计算要求;
7.修订了阳台的面积计算规定;
8.修订了外保温层面积计算规定;
9.修订了设备层、管道层的面积计算规定;
10.增加了门廊的面积计算规定;
11.增加了有顶盖的采光井的面积计算规定。
第三部分:新面积规范术语解释

旧版规范删除的术语:回廊、围护性幕墙、装饰性幕墙、眺望间、永久性顶盖。删除了按使用功能命名的术语。
新版规范新增的术语:建筑面积、建筑空间、结构净高、结构层、门廊、楼梯、主体结构、露台、台阶。
修改的部分原有术语:层高、架空层、走廊、阳台、飘窗、骑楼、过街楼等。

明确了栏杆、栏板等不属于围护结构。围护设施的设置应符合有关安全标准的规定。


台阶是指建筑物出入口不同标高地面或同楼层不同标高处设置的供人行走的阶梯式连接构件。室外台阶还包括与建筑物出入口连接处的平台。
2.修改的术语

阳台主要有三个属性:一是阳台是附设于建筑物外墙的建筑部件;二是阳台应有栏杆、栏板等围护设施或窗;三是阳台是室外空间。
阳台有两种情况:一种是在外墙和主体结构外,属于主体结构外的阳台;另一种是在外墙外、主体结构内,属于主体结构内的阳台。
有时,设计将外墙内、主体结构内的部分也标注为阳台,但根据定义,阳台是外墙外的附属设施,外墙内的阳台实际上不应称呼为阳台。本规范为了能够表述清楚不同情况的规则,避免大家混乱,故对此种情况归为主体结构内的阳台。
四、新计算建筑面积的规定
1.层高不同,面积计算有别
3.0.1 建筑物的建筑面积应按自然层外墙结构外围水平面积之和计算。结构层高在2.20m及以上的,应计算全面积;结构层高在2.20m以下的,应计算1/2面积。
【旧规范】
3.0.1 单层建筑物的建筑面积,应按其外墙勒脚以上结构外围水平面积计算,并应符合下列规定:
1 单层建筑物高度在2.20m及以上者应计算全面积;高度不足2.20m者应计算1/2面积。
3.0.3多层建筑物首层应按其外墙勒脚以上结构外围水平面积计算;二层以上楼层应按其外墙结构外围水平面积计算。层高在2.20m及以上者应计算全面积;层高不足2.20m者应计算1/2面积。
1、本规范不再区分单层建筑与多层建筑,其建筑面积计算规则统一进行规定。
2、结构层高是指“楼面或地面结构层上表面至上部结构层上表面之间的垂直距离”。

?上下均为楼面时,结构层高是相邻两层楼板结构层上表面之间的垂直距离。
?建筑物最底层,从“混凝土构造”的上表面,算至上层楼板结构层上表面。
分两种情况:一是有混凝土底板的,从底板上表面算起(如底板上有上反梁,则应从上反梁上表面算起);二是无混凝土底板、有地面构造的,以地面构造中最上一层混凝土垫层或混凝土找平层上表面算起。
?建筑物顶层,从楼板结构层上表面算至屋面板结构层上表面。
3、勒脚是指建筑物外墙与室外地面或散水接触部分墙体的加厚部分,不能代表整个外墙结构,故计算建筑面积时不考虑勒脚。
4、当外墙结构本身在一个层高范围内不等厚时(不包括勒脚,外墙结构在该层高范围内材质不变 ),以楼地面结构标高处的外围水平面积计算。

5、下部为砌体,上部为彩钢板围护的建筑物(俗称轻钢厂房),其建筑面积的计算:

当h在0.45m以下时,建筑面积按彩钢板外围水平面积计算;
当h在0.45m及以上时,建筑面积按下部砌体外围水平面积计算。
2.同楼层内有局部二层及以上楼层面积计算规定
3.0.2 建筑物内设有局部楼层时,对于局部楼层的二层及以上楼层,有围护结构的应按其围护结构外围水平面积计算,无围护结构的应按其结构底板水平面积计算,且结构层高在2.20m及以上的,应计算全面积,结构层高在2.20m以下的,应计算1/2面积。
【旧规范】
3.0.2 单层建筑物内设有局部楼层者,局部楼层的二层及以上楼层,有围护结构的应按其围护结构外围水平面积计算,无围护结构的应按其结构底板水平面积计算。层高在2.20m及以上者应计算全面积;层高不足2.20m者应计算1/2面积。
1、本规范不再强调“单层建筑物内设置”的概念,无论是单层、多层,只要是在一个自然层内设置的局部楼层都适用本条,例如复式房屋。
2、建筑物内设有局部楼层,其首层面积已包括在原建筑物中不能重复计算。因此,应从二层以上开始计算局部楼层的建筑面积。


【例】以上图为例。假设局部楼层①、②、③层高均超过2.20m,计算该建筑物建筑面积。
解:首层建筑面积=50×10=500m2
有围护结构的局部楼层②建筑面积=5.49×3.49=19.16m2
无围护结构(有围护设施)的局部楼层③建筑面积=(5+0.1)×(3+0.1)=15.81m2
合计建筑面积=500+19.16+15.81=534.97m2
问题:如?没有栏杆是否可计算面积?
3.坡屋顶面积计算
3.0.3 形成建筑空间的坡屋顶,结构净高在2.10m及以上的部位应计算全面积;结构净高在1.20m及以上至2.10m以下的部位应计算1/2面积;结构净高在1.20m以下的部位不应计算建筑面积。
【旧规范】
3.0.1 单层建筑物的建筑面积,应按其外墙勒脚以上结构外围水平面积计算,并应符合下列规定:
3.0.2利用坡屋顶内空间时,净高超过2.10m的部位计算全面积;净高在1.20m至2.10m的部位应计算1/2面积;净高不足1.20m的部位不应计算建筑面积。
3.0.4 多层建筑坡屋顶内和场馆看台下,当设计加以利用时净高超过2.10m的部位应计算全面积;净高在1.20m至2.10m的部位应计算1/2面积;当设计不利用或室内净高不足1.20m时不应计算面积。

【例】某坡屋面下建筑空间的尺寸如图,建筑物长50m,计算其建筑面积。
解:全面积部分:S=50×(15-1.5×2-1.0×2)=500m2
1/2面积部分:S=50×1.5×2×1/2=75m2
合计建筑面积:S=500+75=575m2
4.场馆看台面积计算
3.0.4 场馆看台下的建筑空间,结构净高在2.10m及以上的部位应计算全面积;结构净高在1.20m及以上至2.10m以下的部位应计算1/2面积;结构净高在1.20m以下的部位不应计算建筑面积。室内单独设置的有围护设施的悬挑看台,应按看台结构底板水平投影面积计算建筑面积。有顶盖无围护结构的场馆看台应按其顶盖水平投影面积的1/2计算面积。
本条共分三层意思,都是针对场馆的,但适用范围有一定区别:
其一,关于看台下的建筑空间,对“场”(顶盖不闭合)和“馆”(顶盖闭合)都适用;
其二,关于室内单独悬挑看台,仅对“馆”适用;
其三,关于有顶盖无围护结构的看台,仅对“场”适用。
注意:
有顶盖无围护结构的看台,必定有围护设施。
室内单独设置的有围护设施的悬挑看台如下图。无论是单层还是双层悬挑看台,都按各自的“看台结构底板水平投影面积计算建筑面积”。

“场”的看台
(1)有顶盖无围护结构的看台,按顶盖计算1/2建筑面积。计算建筑面积的范围应是看台与顶盖重叠部分的水平投影面积。

(2)有双层看台时,各层分别计算建筑面积,顶盖及上层看台均视为下层看台的盖。
(3)无顶盖的看台,不计算建筑面积(看台下的建筑空间按本条第一款计算建筑面积)。
5.地下室面积计算
3.0.5 地下室、半地下室应按其结构外围水平面积计算。结构层高在2.20m及以上应计算全面积;结构层高在2.20m以下应计算1/2面积。
【旧规范】
3.0.5 地下室、半地下室(车间、商店、车站、车库、仓库等),包括相应的有永久性顶盖的出入口,应按其外墙上口(不包括采光井、外墙防潮层及其保护墙)外边线所围水平面积计算。层高在2.20m及以上者应计算全面积;层高不足2.20m者应计算1/2面积。
1、由于地下室、半地下室与正常楼层的计算原则相一致,故实际在计算建筑面积时,无需对地下室、半地下室进行严格意义的划分。
2、地下室、半地下室按“结构外围水平面积”计算,不再按“外墙上口”取定。当外墙为变截面时,按地下室、半地下室楼地面结构标高处的外围水平面积计算。
6.室外坡道面积计算
3.0.6 出入口外墙外侧坡道有顶盖的部位,应按其外墙结构外围水平面积的1/2计算面积。
【旧规范】
3.0.5 地下室、半地下室(车间、商店、车站、车库、仓库等),包括相应的有永久性顶盖的出入口,应按其外墙上口(不包括采光井、外墙防潮层及其保护墙)外边线所围水平面积计算。层高在2.20m及以上者应计算全面积;层高不足2.20m者应计算1/2面积。
1、出入口坡道计算建筑面积应满足两个条件:一是有顶盖,二是有侧墙(即规范中所说的“外墙结构”,但侧墙不一定封闭)。计算建筑面积时,有顶盖的部位按外墙(侧墙)结构外围水平面积计算;无顶盖的部位,即使有侧墙,也不计算建筑面积。

2、本条不仅适用于地下室、半地下室出入口,也适用于坡道向上的出入口。
3、本规范出入口坡道,无论结构层高多高,都只计算一半面积,这一点与旧规范不同。
4、由于坡道是从建筑物内部一直延伸到建筑物外部的,建筑物内的部分随建筑物正常计算建筑面积,建筑物外的部分按本条执行。建筑物内、外的划分以建筑物外墙结构外边线为界。见下页图。

上图中,红色线标示出了建筑物外墙结构外边线,线的左侧、下侧部分属于坡道出入口,按本条执行。
7.架空层面积计算
3.0.7 建筑物架空层及坡地建筑物吊脚架空层,应按其顶板水平投影计算建筑面积。结构层高在2.20m及以上的,应计算全面积;结构层高在2.20m以下的,应计算1/2面积。
【旧规范】
3.0.6 坡地的建筑物吊脚架空层、深基础架空层,设计加以利用并有围护结构的,层高在2.20m及以上的部位应计算全面积;层高不足2.20m的部位应计算1/2面积。设计加以利用、无围护结构的建筑吊脚架空层,应按其利用部位水平面积的l/2计算;设计不利用的深基础架空层、坡地吊脚架空层、多层建筑坡屋顶内、场馆看台下的空间不应计算面积。
1、架空层常见的是学校教学楼、住宅等工程在底层设置的架空层,有的建筑物在二层或以上某个甚至多个楼层设置架空层,有的建筑物设置深基础架空层或利用斜坡设置吊脚架空层,作为公共活动、停车、绿化等空间 。
2、架空层是指“仅有结构支撑而无外围护结构的开敞空间层”。只要具备可利用状态,均计算建筑面积。
规范中提到的“吊脚架空层”,也是无围护结构的,如下图。

3、本规范将旧规范仅适用于坡地建筑物吊脚架空层、深基础架空层,扩大为建筑物架空层及坡地建筑物吊脚架空层。同时,对计算规则作了调整,将建筑物架空层建筑面积改为按顶板水平投影计算,层高在2.20m及以上的部位应计算全面积,层高不足2.20m的部位应计算1/2面积。
4、顶板水平投影面积是指架空层结构顶板的水平投影面积,不包括架空层主体结构外的阳台、空调板、通长水平挑板等外挑部分。
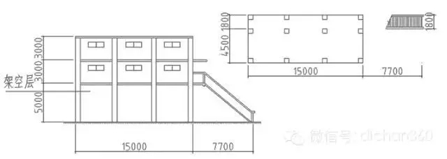
【例】计算右图教学楼底层架空层的建筑面积。
解:S=15×(4.5+1.8)=94.5m2

【例】计算右图吊脚架空层的建筑面积。
解:S=5.44×2.8=15.23m2

8.门厅面积计算
3.0.8 建筑物的门厅、大厅应按一层计算建筑面积,门厅、大厅内设置的走廊应按走廊结构底板水平投影面积计算建筑面积。结构层高在2.20m及以上的,应计算全面积;结构层高在2.20m以下的,应计算1/2面积。
【旧规范】
3.0.7 建筑物的门厅、大厅按一层计算建筑面积。门厅、大厅内设有回廊时,应按其结构底板水平面积计算。层高在2.20m及以上者应计算全面积;层高不足2.20m者应计算1/2面积。
本条与旧规范实质内容完全一样,仅是将“回廊”修改为“走廊”(回廊属于走廊的一种),表述更全面。下图中涂黄部分归为走廊。

9.架空走廊面积计算
3.0.9 建筑物间的架空走廊,有顶盖和围护结构的,应按其围护结构外围水平面积计算全面积;无围护结构、有围护设施的,应按其结构底板水平投影面积计算1/2面积。
【旧规范】
3.0.8 建筑物间有围护结构的架空走廊,应按其围护结构外围水平面积计算。层高在2.20m及以上者应计算全面积;层高不足2.20m者应计算1/2面积。有永久性顶盖无围护结构的应按其结构底板水平面积的1/2计算。
1、架空走廊,是指“专门设置在建筑物的二层或二层以上,作为不同建筑物之间水平交通的空间”。

2、关于规范中“有顶盖和围护结构”的含义:
旧规范仅提到“有围护结构”,本规范修改为“有顶盖和围护结构”,两本规范表述方式不同,但本质含义未发生变化。
3、架空走廊建筑面积计算分为两种情况:
一是有围护结构且有顶盖,计算全面积;二是无围护结构、有围护设施,无论是否有顶盖,均计算1/2面积。
有围护结构的,按围护结构计算面积;无围护结构的,按底板计算面积。
4、由于架空走廊存在无盖的情况,有时无法计算结构层高,故规范中不考虑层高的因素。
10.“三库”面积计算
3.0.10 立体书库、立体仓库、立体车库,有围护结构的,应按其围护结构外围水平面积计算建筑面积;无围护结构、有围护设施的,应按其结构底板水平投影面积计算建筑面积。无结构层的应按一层计算,有结构层的应按其结构层面积分别计算。结构层高在2.20m及以上的,应计算全面积;结构层高在2.20m以下的,应计算1/2面积。
【旧规范】
3.0.9 立体书库、立体仓库、立体车库,无结构层的应按一层计算,有结构层的应按其结构层面积分别计算。层高在2.20m及以上者应计算全面积;层高不足2.20m者应计算1/2面积。
1、本规范增加了无围护结构、有围护设施的立体书库、立体仓库、立体车库。如下图:
2、有围护结构的,按围护结构计算面积;无围护结构的,按底板计算面积。
注意:立体车库中的升降设备,不属于结构层,不计算建筑面积。

以上二图都只能计算一层建筑面积。
仓库中的立体货架、书库中的立体书架都不算结构层。
11.特殊建筑面积计算
3.0.11 有围护结构的舞台灯光控制室,应按其围护结构外围水平面积计算。结构层高在2.20m及以上的,应计算全面积;结构层高在2.20m以下的,应计算1/2面积。
【旧规范】
3.0.10 有围护结构的舞台灯光控制室,应按其围护结构外围水平面积计算。层高在2.20m及以上者应计算全面积;层高不足2.20m者应计算1/2面积。

12.橱窗面积计算
3.0.12 附属在建筑物外墙的落地橱窗,应按其围护结构外围水平面积计算。结构层高在2.20m及以上的,应计算全面积;结构层高在2.20m以下的,应计算1/2面积。
【旧规范】
3.0.11 建筑物外有围护结构的落地橱窗、门斗、挑廊、走廊、檐廊,应按其围护结构外围水平面积计算。层高在2.20m及以上者应计算全面积;层高不足2.20m者应计算1/2面积。有永久性顶盖无围护结构的应按其结构底板水平面积的1/2计算。
1、落地橱窗的界定,本规范有所调整,由旧规范“建筑物外有围护结构的落地橱窗”调整为“附属在建筑物外墙的落地橱窗”。
橱窗有在建筑物主体结构内的,有在建筑物主体结构外的。在建筑物主体结构内的橱窗如右图:

在建筑物主体结构内的橱窗,其建筑面积随自然层一起计算,不执行本条款。
在建筑物主体结构外的橱窗,属于建筑物的附属结构,“附属在建筑物外墙”明确体现了这个含义。
“落地”系指该橱窗下设置有基础。
由于“附属在建筑物外墙的落地橱窗”的顶板、底板标高不一定与自然层的划分相一致,故此条单列,未随自然层一起规定。
2、本条规范仅适用于“落地橱窗”。如橱窗无基础,为悬挑式时,按3.0.13凸(飘)窗的规则计算建筑面积。
13.凸(飘)窗面积计算
3.0.13 窗台与室内楼地面高差在0.45m以下且结构净高在2.10m及以上的凸(飘)窗,应按其围护结构外围水平面积计算1/2面积。
1、目前俗称的凸窗或飘窗,从外立面上看主要有两类:间断式、连续式,如右图。
从室内看,也分两类:一类是凸(飘)窗地面与室内地面同标高,另一类是凸(飘)窗与室内地面有高差(有高差时,高差可能在0.45m以上,也可能在0.45m以下)。

2、无高差或高差在0.45m以下的,则凸(飘)窗实际上具备了一定的使用功能,因此本规范计算建筑面积。
本规范高差是指结构高差。结构高差取定0.45m,是基于设计规范取定。
3、凸(飘)窗须同时满足两个条件方能计算建筑面积:一是结构高差在0.45m以下,二是结构净高在2.10m及以上。
如下图:
高差0.6m>0.45m,结构净高1.9m<2.1m,两个条件均不满足,故该凸(飘)窗不计算建筑面积。

下图,高差0.3m<0.45m,结构净高2.2m>2.1m,两个条件均满足,故该凸(飘)窗应计算建筑面积。

【例】某个能计算建筑面积的凸(飘)窗平面尺寸如下图,计算凸(飘)窗建筑面积。

解:S=[1/2×(1.2+2.6)×0.6]×1/2=0.57m2
14.走廊(挑廊)面积计算
3.0.14 有围护设施的室外走廊(挑廊),应按其结构底板水平投影面积计算1/2面积;有围护设施(或柱)的檐廊,应按其围护设施(或柱)外围水平面积计算1/2面积。
【旧规范】
3.0.11 建筑物外有围护结构的落地橱窗、门斗、挑廊、走廊、檐廊,应按其围护结构外围水平面积计算。层高在2.20m及以上者应计算全面积;层高不足2.20m者应计算1/2面积。有永久性顶盖无围护结构的应按其结构底板水平面积的1/2计算。
1、室外走廊(包括挑廊)、檐廊都是室外水平交通空间。其中挑廊是悬挑的水平交通空间;檐廊是底层的水平交通空间,由屋檐或挑檐作为顶盖,且一般有柱或栏杆、栏板等。底层无围护设施但有柱的室外走廊可参照檐廊的规则计算建筑面积。
无论哪一种廊,除了必须有地面结构外,还必须有栏杆、栏板等围护设施或柱,这两个条件缺一不可,缺少任何一个条件都不计算建筑面积。


上左图中二、三层的室外水平交通空间为挑廊。底层虽然有地面结构,但无栏杆、栏板或柱,不属于室外走廊,不计算建筑面积。
上右图中左侧部分虽无栏杆、栏板等围护设施,但有柱、有地面结构,按檐廊的规则计算一半建筑面积。右侧部分无栏杆、栏板,也无柱,不属于室外走廊,不计算建筑面积。
2、室外走廊(挑廊)、檐廊虽然都算1/2面积,但取定的计算部位不同:室外走廊(挑廊)按结构底板计算,檐廊按围护设施(或柱)外围计算。
15.门斗面积计算
3.0.15 门斗应按其围护结构外围水平面积计算建筑面积,且结构层高在2.20m及以上的,应计算全面积,结构层高在2.20m以下的,应计算1/2面积。
【旧规范】
3.0.11 建筑物外有围护结构的落地橱窗、门斗、挑廊、走廊、檐廊,应按其围护结构外围水平面积计算。层高在2.20m及以上者应计算全面积;层高不足2.20m者应计算1/2面积。有永久性顶盖无围护结构的应按其结构底板水平面积的1/2计算。
1、门斗是“建筑物出入口两道门之间的空间”,它是有顶盖和围护结构的全围合空间。
2、门斗是全围合的,门廊、雨篷至少有一面不围合。
16.雨篷面积计算
3.0.16 门廊应按其顶板的水平投影面积的1/2计算建筑面积;有柱雨篷应按其结构板水平投影面积的1/2计算建筑面积;无柱雨篷的结构外边线至外墙结构外边线的宽度在2.10m及以上的,按雨篷结构板的水平投影面积的1/2计算建筑面积。
【旧规范】
3.0.16 雨篷结构的外边线至外墙结构外边线的宽度超过2.10m者,应按雨篷结构板的水平投影面积的1/2计算。
1、雨篷系指建筑物出入口上方、突出墙面、为遮挡雨水而单独设立的建筑部件。雨篷划分为有柱雨篷(包括独立柱雨篷、多柱雨篷、柱墙混合支撑雨篷、墙支撑雨篷)和无柱雨篷(悬挑雨篷)。

2、有柱雨篷和无柱雨篷计算面积规则不同
(1)有柱雨篷,没有出挑宽度的限制;无柱雨篷,出挑宽度≥2.10m时才能计算建筑面积。出挑宽度,系指雨篷结构外边线至外墙结构外边线的宽度,弧形或异形时,为最大宽度(图中b)。

(2)有柱雨篷不受跨越层数的限制,均可计算建筑面积。如右图,有柱雨篷顶板跨层,达到二层顶板标高处,仍可计算建筑面积。
(3)无柱雨篷,其结构顶板不能跨层。如顶板跨层,则不计算建筑面积。

3、门廊是指在建筑物出入口,无门、三面或二面有墙,上部有板(或借用上部楼板)维护的部位。门廊划分为全凹式、半凹半凸式。全凸时,归为墙支撑雨篷。

4、不单独设立顶盖,利用上层结构板(如楼板、阳台底板)进行遮挡,也不视为雨篷,不计算建筑面积。
5、混合情况的判断原则
判断原则:
根据不重算面积的原则。当一个附属的建筑部件具备两个或两个以上功能,且计算的建筑面积不同时,只计算一次建筑面积,且取较大的面积。
5、混合情况判断
分三种情况:

1.右上图正确判断方法:二层部位为阳台,按底板计算1/2建筑面积;一层出入口部位,利用上层阳台底板进行遮挡,不视为雨篷,不计算建筑面积。
2.右下图正确判断方法:下部为有柱雨篷,按顶盖计算1/2建筑面积;上部为雨篷上设置的露台,露台不计算建筑面积。

3.右图正确判断方法:
第三层部分为屋面上的露台,不计算建筑面积。
第二层处为主体结构内的阳台,按结构外围计算全面积。
底层利用上层阳台底板进行遮挡,不视为雨篷,不计算建筑面积。

17.楼梯间等面积计算
分三种情况:
其一、楼梯间等在建筑物顶部
3.0.17 设在建筑物顶部的、有围护结构的楼梯间、水箱间、电梯机房等,结构层高在2.20m及以上的应计算全面积;结构层高在2.20m以下的,应计算1/2面积。
其二、楼梯间等在建筑物其他楼层
3.0.19 建筑物的室内楼梯、电梯井、提物井、管道井、通风排气竖井、烟道,应并入建筑物的自然层计算建筑面积。有顶盖的采光井应按一层计算建筑面积,且结构净高在2.10m及以上的,应计算全面积;结构净高在2.10m以下的,应计算1/2面积。
1、本规范将旧规范的“室内楼梯间”改为“室内楼梯”,包括了形成井道的楼梯(即室内楼梯间)和没有形成井道的楼梯(即室内楼梯),明确了没有形成井道的室内楼梯也应该计算建筑面积。例如建筑物大堂内的楼梯、跃层(或复式)住宅的室内楼梯等应计算建筑面积。

2、室内楼梯间并入建筑物自然层计算建筑面积。

以右图为例,地上15层、地下1层,故楼梯间按16层计算建筑面积。建筑物顶部的楼梯间另按3.0.17条规定计算建筑面积。
3、未形成楼梯间的室内楼梯按楼梯水平投影面积计算建筑面积。
4、室内楼梯计算建筑面积时注意:如图纸中画出了楼梯,无论是否用户自理,均按楼梯水平投影面积计算建筑面积;如图纸中未画出楼梯,仅以洞口符号表示,则计算建筑面积时不扣除该洞口面积。

5、跃层和复式房屋的室内公共楼梯间:跃层房屋,按两个自然层计算;复式房屋,按一个自然层计算。
跃层房屋是指房屋占有上下两个自然层,卧室、起居室、客厅、卫生间、厨房及其他辅助用房分层布置。
复式房屋在概念上是一个自然层,但层高较普通的房屋高,在局部掏出夹层,安排卧室或书房等内容。
6、当室内公共楼梯间两侧自然层数不同时,以楼层多的层数计算。图中楼梯间应计算6个自然层建筑面积。
7、设备管道层,尽管通常设计描述的层数中不包括,但在计算楼梯间建筑面积时,应算1个自然层。
8、利用室内楼梯下部的建筑空间不重复计算建筑面积。例如,利用梯段下方做卫生间或库房时,该卫生间或库房不另计算建筑面积。
9、本规范电梯井、观光电梯井合并,统一称呼为电梯井。
10、井道(包括电梯井、提物井、管道井、通风排气竖井、烟道),不分建筑物内外,均按自然层计算建筑面积,例如附墙烟道。但独立烟道不计算建筑面积。
11、井道(包括室内楼梯、电梯井、提物井、管道井、通风排气竖井、烟道)按建筑物的自然层计算建筑面积。如自然层结构层高在2.20m以下,楼层本身计算1/2面积时,相应的井道也应计算1/2面积。
12、采光井
由于目前建筑物设计的多样化,采光井的构造也发了很大的变化。本规范增加了有顶盖的采光井计算建筑面积的规定(有顶盖的采光井包括建筑物中的采光井和地下室采光井)。有顶盖的采光井如下图。无顶盖的采光井仍然不计算建筑面积。有顶盖的采光井不论多深、采光多少层,均只计算一层建筑面积。右图采光两层,但只计算一层建筑面积。

其三、室外楼梯
3.0.20 室外楼梯应并入所依附建筑物自然层,并应按其水平投影面积的1/2计算建筑面积。
【旧规范】
3.0.17 有永久性顶盖的室外楼梯,应按建筑物自然层的水平投影面积的1/2计算。
3.0.24 下列项目不应计算面积:
7 无永久性顶盖的架空走廊、室外楼梯和用于检修、消防等的室外钢楼梯、爬梯。
本规范取消了室外楼梯计算建筑面积要有永久性顶盖的条件,室外楼梯无论有盖或无盖均应计算一半建筑面积。
【例】以下图为例,假设楼梯水平投影面积S=10m2,计算室外楼梯建筑面积。

3、利用室外楼梯下部的建筑空间不重复计算建筑面积。
18.不垂直围护结构面积计算
3.0.18 围护结构不垂直于水平面的楼层,应按其底板面的外墙外围水平面积计算。结构净高在2.10m及以上的部位,应计算全面积;结构净高在1.20m及以上至2.10m以下的部位,应计算1/2面积;结构净高在1.20m以下的部位,不应计算建筑面积。
【旧规范】
3.0.14 设有围护结构不垂直于水平面而超出底板外沿的建筑物,应按其底板面的外围水平面积计算。层高在2.20m及以上者应计算全面积;层高不足2.20m者应计算1/2面积。
1、旧规范中仅对围护结构向外倾斜的情况进行了规定,本规范对于向内、向外倾斜均适用。在划分高度上,本条使用的是“净高”,与其他正常平楼层按层高划分不同,但与斜屋面的划分原则相一致。由于目前很多建筑设计追求新、奇、特,造型越来越复杂,很多时候我们根本无法明确区分什么是围护结构、什么是屋顶,例如国家大剧院的蛋壳型外壳,我们无法准确说其到底是算墙还是算屋顶,因此本规范中对于斜围护结构与斜屋顶采用相同的计算规则,即只要外壳倾斜,就按净高划段,分别计算建筑面积。
注意:
因为围护结构本身是应计算建筑面积的,如果我们认定是斜围护结构时,围护结构本身应计算建筑面积,而如果认定是斜屋顶时,屋面结构不计算建筑面积。因此虽然有时很难对二者明确区分,但为了统一计算的原则,对于围护结构向内倾斜的情况做如下规定:
(1)多(高)层建筑物顶层,楼板以上部位的外侧均视为屋顶,按净高不同,算面积或不算面积。

(2)多(高)层建筑物其他层,倾斜部位均视为围护结构,底板面处的围护结构应计算全面积。

(3)单层建筑物时,计算原则同多(高)层建筑物其他层,即:倾斜部位均视为围护结构,底板面处的围护结构应计算全面积。
如是单层斜顶如何计算?

2、本条款计算规则比较复杂,按“底板面的外墙外围水平面积”计算建筑面积,这是由于围护结构不垂直,可能向内倾斜,也可能向外倾斜,各个标高处的外墙外围水平面积可能是不同的,因此本规范取定为结构底板处的外墙外围水平面积。
19.阳台面积计算
3.0.21 在主体结构内的阳台,应按其结构外围水平面积计算全面积;在主体结构外的阳台,应按其结构底板水平投影面积计算1/2面积。
【旧规范】
3.0.18 建筑物的阳台均应按其水平投影面积的1/2计算。
1、阳台是“附设于建筑物外墙,设有栏杆或栏板,可供人活动的室外空间”(源自《民用建筑设计术语标准》
旧规范定义为“供使用者进行活动和晾晒衣物的建筑空间”,仅从使用功能上进行了定义,本规范对阳台的本质属性进行了明确。
阳台主要有三个属性:
一是阳台是附设于建筑物外墙的建筑部件;
二是阳台应有栏杆、栏板等围护设施或窗;
三是阳台是室外空间。
本规范将阳台划分为主体结构内的阳台和主体结构外的阳台两类,其建筑面积不同:主体结构内的阳台计算全面积,主体结构外的阳台计算1/2面积。

上面两图中的阳台均为主体结构内的阳台,应计算全面积。
2、主体结构的判断
(1)砖混结构:通常以外墙(即围护结构,包括墙、门、窗)来判断,外墙以内为主体结构内,外墙以外为主体结构外。

③如相对两侧仅一侧为剪力墙时,属于主体结构外,计算半面积。如下左图
④如相对两侧均无剪力墙时,属于主体结构外,计算半面积。如上右图。

(4)阳台处剪力墙与框架混合时,分两种情况:
①角柱为受力结构,根基落地,则阳台为主体结构内,计算全面积。
②角柱仅为造型,无根基,则阳台为主体结构外,计算1/2面积
3、顶盖不再是判断阳台的必备条件,无论有盖无盖,只要满足阳台的三个主要属性(附设于建筑物外墙,设有栏杆或栏板,可供人活动的室外空间),都应归为阳台。
4、无论上下层之间是否对齐,只要满足阳台的三个主要属性,也应归为阳台
5、阳台的其他几种典型情况
其一、不因其名称而改变其阳台属性

上图中两个阳台都应视为由剪力墙包围的阳台,属于主体结构内,计算全面积。
其二、主体内外结合的阳台,面积分别计算。

上图中阳台一部分在主体结构内,一部分在主体结构外,应分别计算建筑面积。以柱外侧为界,上面部分属于主体结构内,计算全面积,下面部分属于主体结构外,计算1/2面积。
其三、附属于阳台可进出的花槽也计算面积。
右图中阳台为剪力墙包围的情况,属于主体结构内,应计算全面积。下面部分虽然设计为花槽,但与阳台间有推拉门,该花槽与室内相连通,具备使用功能,且满足阳台的三个主要属性,故应视为阳台,计算1/2面积(如花槽与阳台不相连通,则不应计算建筑面积)。

其四、与阳台板连体的平台。
右图中结构底板上有两个用途,栏杆围护起来的部分为阳台,栏杆外部(图左侧)为设备平台。按规定,阳台应计算1/2面积,但设备平台不与阳台相连通,不计算建筑面积。
计算阳台建筑面积时,前端按结构底板外边线取定,左侧以栏杆外边线为界。栏杆左侧的设备平台不计算建筑面积。

其五、空中花园具有阳台属性。

上图中标注为“空中花园”的部分,根据阳台的判断原则,属于主体结构内,无论是否封闭,均应计算全面积。其他工程中,如发生类似入户花园等的情况,也按阳台的原则进行判断。
6、综上所述,判断阳台是在主体结构内还是在主体结构外,与以下四个方面无关:
(1)阳台与室内空间之间是否有隔断;
(2)阳台是否封闭;
(3)阳台是否采暖;
(4)保温层做在哪里。
7、阳台在主体结构外时,按结构底板计算建筑面积,此时无论围护设施是否垂直于水平面,都按结构底板计算建筑面积,同时应包括底板处突出的部分。

8、如自然层结构层高在2.20m以下时,主体结构内的阳台随楼层一样,均计算1/2面积;但主体结构外的阳台,仍计算1/2面积,不应出现1/4面积。
20.车棚等面积计算
3.0.22 有顶盖无围护结构的车棚、货棚、站台、加油站、收费站等,应按其顶盖水平投影面积的1/2计算建筑面积。
【旧规范】
3.0.19 有永久性顶盖无围护结构的车棚、货棚、站台、加油站、收费站等,应按其顶盖水平投影面积的1/2计算。
1、本规范与旧规范含义完全一致,仅将“永久性顶盖”改为“顶盖”
2、不分顶盖材质,不分单、双排柱,不分矩形柱、异形柱,均按顶盖水平投影面积的1/2计算建筑面积
3、顶盖下有其他能计算建筑面积的建筑物时,仍按顶盖水平投影面积计算1/2面积,顶盖下的建筑物另行计算建筑面积。

上图加油站下方有建筑物,其面积仍按A×B×0.5计算,建筑物另行计算建筑面积。
21.有幕墙的外墙面积计算
其一、幕墙作为围护结构情况
3.0.23 以幕墙作为围护结构的建筑物,应按幕墙外边线计算建筑面积。
【旧规范】
3.0.21 以幕墙作为围护结构的建筑物,应按幕墙外边线计算建筑面积。
智能呼吸式玻璃幕墙(双层幕墙),两层幕墙及两层之间的空间共同构成外墙结构,因此应以外层幕墙外边线计算建筑面积。

其二、幕墙作为装饰性的情况。
装饰性幕墙:设置在建筑物墙体外起装饰作用的幕墙,不计算面积。
22.有保温层的外墙面积计算
3.0.24 建筑物的外墙外保温层,应按其保温材料的水平截面积计算,并入自然层建筑面积。
建筑面积仅计算保温材料本身(例如外贴苯板时,仅苯板本身算保温材料),抹灰层、防水(潮)层、粘接层(空气层)及保护层(墙)等均不计入建筑面积。
即建筑物的建筑面积仍然是先按外墙结构计算,外保温层的建筑面积另行计算,并入建筑面积。

具体计算方法为:
(1)保温隔热层以保温材料的净厚度乘以外墙结构外边线长度按建筑物的自然层计算建筑面积。
(2)其外墙外边线长度不扣除门窗和建筑物外已计算建筑面积的构件(如阳台、室外走廊、门斗、落地橱窗等部件)所占长度。
(3)当建筑物外已计算建筑面积的构件(如阳台、室外走廊、门斗、落地橱窗等部件)有保温隔热层时,其保温隔热层也不再计算建筑面积。

注意:1.“保温材料的水平截面积”是针对保温材料垂直放置的状态而言的,是按照保温材料本身厚度计算的。当围护结构不垂直于水平面时,仍应按保温材料本身厚度计算,而不是斜厚度,见下图。

2.外保温层计算建筑面积是以沿高度方向满铺为准。如地下室等外保温层铺设高度未达到楼层全部高度时,保温层不计算建筑面积。
3.复合墙体(如下图)不属于外墙外保温层,整体视为外墙结构,按3.0.1条执行。

23.变形缝面积计算
3.0.25 与室内相通的变形缝,应按其自然层合并在建筑物建筑面积内计算。对于高低联跨的建筑物,当高低跨内部连通时,其变形缝应计算在低跨面积内。
【旧规范】
3.0.20 高低联跨的建筑物,应以高跨结构外边线为界分别计算建筑面积;其高低跨内部连通时,其变形缝应计算在低跨面积内。
3.0.23 建筑物内的变形缝,应按其自然层合并在建筑物面积内计算。
与室内不相通的变形缝不计算建筑面积。如下图:

高低联跨的建筑物,当高低跨内部连通或局部连通时,其连通部分变形缝的面积计算在低跨面积内。
24.设备层等面积计算
3.0.26 对于建筑物内的设备层、管道层、避难层等有结构层的楼层,结构层高在2.20m及以上的,应计算全面积;结构层高在2.20m以下的,应计算1/2面积。
1、设备层、管道层虽然其具体功能与普通楼层不同,但在结构上及施工消耗上并无本质区别,且本规范定义自然层为“按楼地面结构分层的楼层”,因此设备、管道层也归为自然层,其计算规则与普通楼层相同。
2、在吊顶空间内设置管道及检修马道的,吊顶空间部分不能被视为设备层、管道层,不计算建筑面积 。如右图:

25.不应计算建筑面积的内容
1.与建筑物内不相连通的建筑部件;
【旧规范】
3.0.24 下列项目不应计算面积:
6 勒脚、附墙柱、垛、台阶、墙面抹灰、装饰面、镶贴块料面层、装饰性幕墙、空调室外机搁板(箱)、飘窗、构件、配件、宽度在2.10m及以内的雨篷以及与建筑物内不相连通的装饰性阳台、挑廊。
“与建筑物内不相连通”是指没有正常的出入口。即:通过门进出的,视为“连通”,通过窗或栏杆等翻出去的,视为“不连通”。
2 骑楼、过街楼底层的开放公共空间和建筑物通道

3 舞台及后台悬挂幕布和布景的天桥、挑台等;
【旧规范】
3.0.24 下列项目不应计算面积:
3 建筑物内分隔的单层房间,舞台及后台悬挂幕布、布景的天桥、挑台等。

4 露台、露天游泳池、花架、屋顶的水箱及装饰性结构构件;
【旧规范】
3.0.24 下列项目不应计算面积:
4 屋顶水箱、花架、凉棚、露台、露天游泳池。

露台是指“设置在屋面、首层地面或雨篷上的供人室外活动的有围护设施的平台”。露台须同时满足四个条件:一是位置,设置在屋面、地面或雨篷顶,二是可出入,三是有围护设施,四是无盖。

5 建筑物内的操作平台、上料平台、安装箱和罐体的平台;
【旧规范】
3.0.24 下列项目不应计算面积:
5 建筑物内的操作平台、上料平台、安装箱和罐体的平台。
下图中的上料平台均不计算建筑面积。

下图中的操作平台均不计算建筑面积。

6 勒脚、附墙柱、垛、台阶、墙面抹灰、装饰面、镶贴块料面层、装饰性幕墙、主体结构外的空调室外机搁板(箱)、构件、配件、挑出宽度在2.10m以下的无柱雨篷和顶盖高度达到或超过两个楼层的无柱雨棚;
【旧规范】
3.0.24 下列项目不应计算面积:
6 勒脚、附墙柱、垛、台阶、墙面抹灰、装饰面、镶贴块料面层、装饰性幕墙、空调室外机搁板(箱)、飘窗、构件、配件、宽度在2.10m及以内的雨棚以及与建筑物内不相连通的装饰性阳台、挑廊。
1、结构柱应计算建筑面积。不计算建筑面积的“附墙柱”是指非结构性装饰柱。
2、台阶是“联系室内外地坪或同楼层不同标高而设置的阶梯形踏步”,室外台阶还包括与建筑物出入口连接处的平台。
(1)台阶可能利用地势砌筑。

(2)台阶可能利用下部空间的,按建筑物屋顶计算面积。

(3)台阶也可能架空(起点至终点的高度在一个自然层以内)
3、由于楼梯是“楼层之间垂直交通”的建筑部件,故由起点至终点的高度达到一个自然层及以上的称为楼梯。
7 窗台与室内楼地面高差在0.45m以下且结构净高在2.10m及以下的凸(飘)窗,窗台与室内楼地面高差在0.45m及以上的凸(飘)窗;
【旧规范】
3.0.24 下列项目不应计算面积:
6 勒脚、附墙柱、垛、台阶、墙面抹灰、装饰面、镶贴块料面层、装饰性幕墙、空调室外机搁板(箱)、飘窗、构件、配件、宽度在2.10m及以内的雨棚以及与建筑物内不相连通的装饰性阳台、挑廊。
8 室外爬梯、室外专用消防钢楼梯;
【旧规范】
3.0.24 下列项目不应计算面积:
7 无永久性顶盖的架空走廊、室外楼梯和用于检修、消防等的室外钢楼梯、爬梯。
本规范将“用于”二字调整为“专用”二字,即专用的消防钢楼梯是不计算建筑面积的。
当钢楼梯是建筑物通道,兼顾消防用途时,则应计算建筑面积。
问题:
以用材来区别计算面积是否合理?
9 无围护结构的观光电梯;
1、无围护结构的观光电梯见右图,即电梯轿厢直接暴露,外侧无井壁,不计算建筑面积。

2、如果观光电梯在电梯井内运行时(井壁不限材质),观光电梯井执行3.0.19条规定按自然层计算建筑面积。
3、本规范不计算建筑面积的内容中未提“自动扶梯、自动人行道”。自动扶梯、自动人行道应计算建筑面积。
自动扶梯按3.0.19条规定按自然层计算建筑面积。
自动人行道在建筑物内时,建筑面积不应扣除自动人行道所占的面积。
10 建筑物以外的地下人防通道,独立的烟囱、烟道、地沟、油(水)罐、气柜、水塔、贮油(水)池、贮仓、栈桥等构筑物。
1、本规范调整了语言顺序,将“地下人防通道”移至前面,无论是独立的还是与建筑物相连通的,都不计算建筑面积。原规范容易理解为独立的地下人防通道。
2、取消“地铁隧道”。地铁隧道属于市政工程,不计算建筑面积非常明确,故本规范不再提及。
3、独立烟道属于构筑物,不计算建筑面积;但附墙烟道应按自然层计算建筑面积(见3.0.19条)。
4、独立贮油(水)池属于构筑物,不计算建筑面积。
对《新面积规范》的感悟
1.新建筑面积规范未遏制偷面积而生
2.采用国际清单编制的工程项目招标控制价不受建筑面积计算规则的影响。
3.工程造价技术经济指标与建筑面积计算规则有关。
4.新版建筑面积计算规范未统一建筑工程建设全过程的建筑面积计算。
5.新版建筑面积计算规范是技术和政策有限结合的产物。
来源:房地产经理人联盟 ID:dichan360 推荐关注