一、单元入口及楼梯间

1、单元门
单元入口门洞尺寸不宜小于1500×2300,且设闭门器。建筑入口宜结合造型设置雨蓬,不应直接在楼上阳台下设置住宅入口。大堂顶一定做有组织排水,切忌水舌排水。
2、大堂
首层入户大堂墙面应采用可擦洗材料,应从使用及美观角度统筹安排布告栏及其专用照明、牛奶箱、信报箱等设施。
3、过道
楼层公共过道及各入户门设置应方便用户搬运家具。
4、管线
1.各种管线(包括水平支管)能暗埋的一定暗埋,消防栓等不能暗装的应设于楼段下较隐蔽处,大堂内尽量不要看到管线和消防栓。
2.住宅入门户门垛与消防给水立管或消火栓箱相邻时其尺寸应结合考虑。消防给水立管位置应在建筑图上予以明确。
3.消火栓宜采用内嵌式,不宜设在厅、卧室的墙面并避免正对户门设置,消防栓的安装一定要符合规范,要易于操作不能设于楼梯跑侧墙上,并保证人员正常安全疏散宽度,消防栓应有出屋面实验栓。
4.高层住宅楼梯消火栓明设在休息平台处时,休息平台宽度应比正常宽度加宽200,同时设计时应注意消火栓上皮与梁的关系。
5.消防管、给水管及其他线槽,如有转弯部分绝不能出现在楼梯间上第一跑顶上等显眼的视线范围内,楼梯休息平台顶如有水平支管或线槽最好是先出平台顶再弯进室内,以保证休息平台处净高及美观。
6.单元入口处不能看到天然气管。天然气管的走向应尽量减少天然气管的户内长度,所有立管应设在墙角,不影响台面有效使用宽度,根据特定项目需要还应设管道井。注意各种管线不发生冲突,立管不遮挡排气洞口,不影响开窗,且排气洞口注意与热水器位置想结合布置。
7.电缆井位置应设在楼梯梯段下或室外,非住户必经之地。
5、楼梯
室内楼梯采用简洁、美观、造价合理的硬木扶手及栏杆形式。室外用钢管扶手及栏杆。

1、与电梯相关的各专业设计应相互匹配。
2、电梯选型
A.应明确载客人数和载重量,并考虑轿箱内的装修荷载,适当加大电梯最大载重量。
B.梯井平面净空尺寸不宜小于2200×2200,门洞尺寸不应小于1100×2250。
3、前室门:电梯在人防清洁区内使用时应设前室为防护密闭门。
4、电梯门:电梯机房门宜净宽1200,便于物业维修设备。
5、安全门:井道高度11米内无停靠层站门时,应设安全门。
6、井道
1.电梯筒体井道不应采用空心砌体砌筑。
2.不宜与起居厅、居室贴临,必须贴临时电梯井道应为隔音墙体,且速度大于2.5M/S井道上部应设高度大于1M的隔声层,隔声层设800×800进出口。
3.速度大于2M/S的电梯应在井道底部和顶部设置不小于600×600带百叶窗的通气孔。
4.相邻电梯井道之间隔墙上可设风压泄压孔洞。
7、预留孔洞:电梯的控制面板按钮留洞宜设于两电梯门洞连接墙体的中心位置,以利于电梯门套的安装。单台电梯控制按钮留洞应设于电梯门套宽度中心位置,其位置和高度使用要尽量方便,预留孔的尺寸可比要求四周均宽出25MM。
8、电梯配套功能:应明确轿箱内摄像、电话(三方通话)等做法、要求,电梯机房至控制管理中心(消防控制室)应设计有视频线、电话线。
9、机房
1.扶梯宽度尺寸应预留装饰余量,单梯两边各预留50,双梯两边各预留100。在确定扶梯支撑梁的牛腿高度时,应从地面标高往下减50(地面层装饰厚度)。
2.机房设备应有满足设备尺寸要求的进出口。
3.机房应设置空调位置及吊钩;客用电梯与消防电梯不能共用机房,机房间应采用防火墙分隔。
4.电梯机房应满足通风和散热需要,明确风扇或制冷窗机安装作法。应注意机房温度控制所需通风及空调设备的预留洞、电气管线、插座是否设置。
5.电梯机房宜自然采光通风,否则应考虑通风抽湿设施。
6.不应在电梯机房顶板上直接设置水箱或在机房内直接穿越水管,蒸汽管和烟道。
7.应注意机房屋顶用于吊装设备的梁位置及梁上吊环是否正确。
10、防、排水
1.电梯厅旁的有水房间应设地漏;电梯门口应做1%反坡,防止梯井进水。靠门一侧可比外侧高15-20MM。
2.消防电梯井底应设排水设施,排水井容量不应小于2立方米,且不宜布置在电梯井内,而应布置在临近消防电梯的地方,并用暗管连接,如地下室兼人防时,应注意排水井应设在染毒区。如无特别要求,消防电梯不下地下室。
三、单元户型部分
1.相邻入户防盗门应尽量外开,但在防盗门同时开启时门扇不得碰撞,间隙以大于100为宜;走道中段的入户门不宜外开。
2.住宅入门户门垛与消防给水立管或消火栓箱相邻时其尺寸应结合考虑。消防给水立管位置应在建筑图上予以明确。
3.有门垛时防盗门宜设门套,无门垛时不应设门套。
2、套内门洞
门洞预留要求,单扇入口尺寸应为1000×2100(宽×高);双扇洞口尺寸宜为1200×2100;卧室为900×2100,厨卫为800×2100。室内预留门洞尺寸宜为2100高(预留地面铺装高度);阳台门带窗预留门洞宽度尺寸宜≥1.5米。设置水、电表的门洞尺寸应尽量大一些,以使不进入井道就能操表。
3、玄关

玄关内考虑衣帽镜、柜设置空间,250-300进深,1100-1500宽,并避免与户配电箱、对讲机发生冲突。
4、客厅
客厅沙发应有利于向外景观最佳的视线位置布置。
5、跃层
1.跃层卧室不得设在厨房正上方,卫生间不得设在卧室、厨房、客厅、入口正上方。
2.跃层住宅的室内楼梯间的平面尺寸、梯踏步的几何尺寸应符合规范要求:步宽≥220m,步高≤200,建议按250×175设计;梯段宽度≥900m;梯踏步至顶上的横梁高度应≥2000。
6、墙体
1.确保建筑施工图上的结构柱位置及尺寸与结施图一致,多次修改后的承重墙体布置与龙湖购房合同中建筑墨线图一致。
2.填充墙空心砌块不得采用单排孔砌块。
3.应明确砌体构造做法和防止墙体开裂的措施。
4.内墙除混凝土墙体外,凡砌体于混凝土接缝处,应挂400宽同规格的钢板网,余下墙面宜挂满12×12×0.6孔钢丝网。
5.管道井内安装设备的墙面应采用实心砖砌筑。
6.应明确内外填充墙的构造柱的位置及做法,应明确框架充墙的厚度及与梁的相对关系尺寸。
7、开关插座
注意所有开关插座整齐、美观、并标明与轴线间距离及安装高度,并与家具布置相结合,符合人的行为模式。
8、地漏
地面排水口及地漏应考虑住户安装及美观的要求,在平面上标明水平及垂直方向定位尺寸,以使各标地段做法统一,地漏不能设于一开门就容易看到处。
9、伸缩缝
1.立面盖板材料应采用1.2厚的铝合金盖板,不做晒衣架,勒脚处与上部墙面平,暗踢脚做法应标明。
2.屋面、墙 柱 楼板 及女儿顶部等处伸缩缝的做法,跨伸缩缝排水沟做法,跨伸缩排水沟做法。
10、预埋件
务必包括所有钢结构及预埋件的设计。
11、预埋管
所有管线能暗埋的一定以最经济的方式暗埋,并明确暗埋方式。

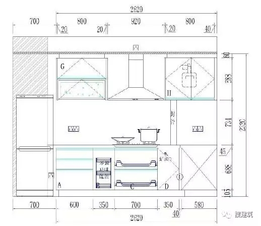
1、橱柜
布置应遵循洗、切、炒的流线,以间距800为宜,炉灶应避开窗口设置,并考虑两人同时操作可能,橱柜进深大于560,长度在2000-3000之间。吊柜进深350,净高不小于500。电气插座应避免靠近水盆、灶具,并结合家具布置。厨房吊柜设置时应注意避免挡窗。吊顶下皮应高于窗洞上皮50。

2、冰箱
位宽度不小于650,若考虑美式大冰箱尺寸应为800。注意冰箱门的开启方便及冰箱散热。高档物业可以就结合橱柜做暗藏式冰箱位。洗衣机位不小于600×600。厨房仅在布置有洗衣机时,设置地漏,地漏位于洗衣机出水口一侧,并避免离橱柜太近。宜采用能防止溢流和干涸的专用地漏。

3、烟道
1.应结合厨具设置烟道,烟道开孔位置应利于抽烟机排气管接入,布置在次烟道宽面上,烟道排气口底标高,不应低于2.5m。
2.烟道产品应过关,避免住户间互相串味,烟道忌单风道设计,烟道本身尺寸过小,而止逆阀深入今道尺寸过大,排烟净空很小,造成排烟不畅。烟道的倒烟现象,应从烟道种类(单烟道,双烟道)、烟道止逆阀的选择、烟道尺寸给予考虑。高层排烟道应采用“主一次一主”变压式烟道,且防止串烟串味,应采用单双层分别排风系统,高层排烟道排风口应有防火止回阀,加工厂应随烟道统一供应。
4、热水器
当热水器安排于生活阳台处,应考虑利于废气排放,若采用封闭阳台,通常需考虑排气管的布置。
5、天然气管
其走向尽量减少天然气管的户内长度,所有立管应设在墙角,不影响台面有效使用宽度,中高档项目应设管道井。注意各种管线不发生冲突,立管不遮挡排气洞口,不影响开窗,且排气洞口注意与热水器位置相结合布置。
6、插座
距离燃气管道应保证有30厘米以上的距离,特别是洗衣机插座和热水器插座容易相碰,如遇此情况,洗衣机插座可降低到1.2米。
7、水立管
1.布置尽量集中,以不影响业主有效台面使用面积。上层使用的下水支管不能暴露于下层别户的非橱卫用房内。
2.厨房设有排水立管的位置应留200~300宽的砖砌体后再设窗户,尽量避免排水立管遮蔽窗户,影响厨房采光。

1、私密:当两户卫生间位于凹槽相对布置时,窗因对视可采用磨砂玻璃或错位布置。
2、防噪:有上下水的洁具应考虑噪音对卧室的影响(如坐便器),尽量避开卧室墙面布置。
3、防水
1.卫生间结构宜沉板400~450(详见结构设计中有关说明)。四周连系梁上做200高C20细石砼挡水墙,遇门断开。卫生间楼板完成面比室内地面低50。
2.卫生间的下层应避免为卧室或餐厅等部位,如难以避免,则结构应降低楼板标高,卫生器具排水方式为侧排,防水等级宜升高。
4、管线
1.应合理布置卫生间内得给水管、排水立管、排气道、浴缸、淋浴房等;安装上下水管的墙面应与梁同平面。
2.卫生间内应避免有梁穿过,有梁穿过时应注意卫生器具楼面留孔与梁的关系,注意避免坐便器正下方是大梁,无法居中安装。各种管线不相冲突,立管不遮挡排气洞口,不影响开窗。
3.卫生间设有排水立管的位置应留200~300宽的砖砌体后再设窗户,尽量避免排水立管遮蔽窗户,影响卫生间采光。
5、毛胚房卫生间设施
1.大户型主卫生间宜洗、浴分间,洁具设施要与户型档次相匹配,应考虑浴缸、大便器和洗脸盆设置位置;
2.公用卫生间一般将浴缸改为淋浴房,宜设管道井;卫生间的上、下水立管不得在室内露明。
3.当洗衣机与洗脸台合设于一室时,应认真合适洗脸台宽度尺寸是否足够,洗衣机位不小于600×600,并宜采用能防止溢流和干涸的专用地漏。
4.大便器的下水口距墙按300坑距,考虑留洞和安装管道。
5.卫生间地面应有2%坡度向地漏,装修房应有0.2%坡度坡向地漏。
6.避免暗厕,暗厕应设通风道,其位置应避免靠近给水管及设在门后。
7.若卫生间设计安装普通浴缸,则窗台高度不能小于500:若卫生间设计安装按摩浴缸,则窗台高度不恩能够小于600;若要安装三角按摩浴缸,则窗台高度不能小于700。
6、精装修卫生间设施

1.主人卫生间台面宽度560-600,长度不小于900,高度850;;
2.台盆镜面宽度同台面长度且高于台面300,台面于淋浴间或浴缸相交处倒园角;
3.毛巾架净宽900-1000;
4.淋浴开关距地1000-1200;
5.淋浴喷头距地1680-1880;
6.上下推拉杆固定:
7.地漏位于淋浴头下部居中,并距墙400;
8.浴缸尺寸宜采用750×1700,档次较高时可考虑增加浴缸平台尺寸。边设∮20不锈钢浴帘杆,毛巾架下边距地900;
9.考虑设置洗拖水头距地500;
10.高档住宅卫生间可考虑安装电话接口;
