2016-07-20 微设计
近日北京遭遇了一场暴雨,
真是豪雨压京,
城市内涝随处可见,
然而有600年历史的故宫却没有出现积水,为何?

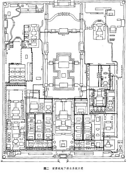
故宫排水系统简介:
紫禁城的排水有明暗两套系统。明排水是通过铺地做出泛水,通过各种排水口、吐水嘴排到周边河中,暗排是通过地下排水道将水排到河里,而这条河就是内外金水河。据其介绍,承德避暑山庄也是这样建设的排水系统。归纳起来,一句话,整个系统,通过明暗等手段,到达一个目的:汇总往外排。
这些被排出的水,通过北高南低的地势泻入内金水河流出。故宫的排水,正是综合了各种排水法,既有地下水道,又有地面明沟,这些或大或小、或明或暗、纵横一气的排水设施,能够使宫内90多个院落、72万平方米面积的雨水通畅排出。


——排水系统经历600年——
据《元史》记载,至元二十八年(1291)七月己未,“雨坏都城,发兵二万人筑之”,57年后的至正八年五月,“京师大霖雨,京城崩圯”。
而后,水灾不绝。据《明英宗实录》记载:景泰五年(1454)七月,京师霖雨,九门城垣塌决者甚多。万历三十五年(1607)闰六月,顺天府大雨如注,昼夜不止,经二旬。雨潦浸贯城,长安街水深五尺,洼者深至丈余,各衙门皆成巨浸。
上述史料显示,在明朝英宗时期,虽九门城垣塌决,但是紫禁城显然比元大都岿然淡定,没有出现“雨坏”局面。而万历年间的20天连续大雨,长安街出现积水,但故宫没有大面积积水情况发生。
永乐十八年(1420)落成的紫禁城的排水系统经受了考验,原因到底何在?

——城外三道防线预防内涝——
据专家介绍,从地势上看,北京北依燕山,东临渤海,西北高东南低,所以水向东南流。从紫禁城来看,北门神武门地平标高46.05米,南门午门地平标高44.28米,差约2米。其排水设施充分利用了这一地形特点而建。

疏通各个宫殿院落的排水系统有干线、支线,有明沟、暗沟、涵洞、流水沟眼等,经过精心测量、规划设计和施工,每年固定时间淘挖养护。值得一提的是,在城外安排了完整的排水系统,减轻了城内的负担。

紫禁城外至少有三道防线:
一是明内城护城河及大明濠、太平湖;
二是西苑太液池和后海;
三是外金水河和紫禁城的筒子河(护城河)。
这些河渠一方面可用于城市供水,另一方面汛情之下亦可用于排水,先在外围保证不至于大量雨水和山洪流入紫禁城。



——排水主干道内金水河——
内金水河是紫禁城的内河。在紫禁城西北角楼偏东的南河帮上,有一石砌券洞,便是内金水河流入宫内的进水口,设有控水闸,可以控制水位高低,遇汛则可以关闭。

按照专家的说法,内金水河所引为西郊玉泉山水,因西在五行中属金,“金生丽水”,故名金水河,“由神武门西地沟引护城河水流入宫内,沿西一带经武英殿前,至太和门前金水桥下,复流经文渊阁前至三座门,从銮驾库东南出紫禁城。”

内金水河全长2000多米,河帮、河底通用白石铺砌。河道曲折蜿蜒,或隐或现,传流整座紫禁城。不止用于美化环境、欣赏鱼藻,在兴建施工时,它是建筑用水的来源,而平时也是作为城内井水之外,消防用水的来源。
紫禁城内大小90多个院落,通过本院的排水沟道,利用北高南低的地势就近排入地下暗沟,最后都汇流于内金水河,再至东华门南隅的水闸流出,与外金水河汇合。

——汇总内金水河——
紫禁城占地面积72公顷,庭院都是中高边低、北高南低,遇雨首先流入四周房基下的石水槽,亦即明沟。台阶或建筑物之类的障碍物则都开有券洞,亦即沟眼,方便地面水穿过障碍物。地面或明沟的水再通过入水口流入地下。入水口多为方石板镂雕成明清铜币(大钱)形,即外圆中方镂成5个空洞,可以进水,称作钱眼。

以故宫前三殿太和殿、中和殿和保和殿为例,前三殿建在8.13米高的三层台基上,台基四周栏杆的底部,有排放雨水的孔洞;每根望柱下还有一个雕琢精美的石龙头,名曰“螭首”,其口内为凿通的圆孔,也是辅助排水的孔道。每逢雨天,雨水从1142个排水孔喷出,呈现“千龙喷水”景观,逐层下落,流到院内,使得台面无积水。台基四周设有石槽排水沟。



前三殿、后三宫都有一条南北向的御路。东西六宫等院落也都有南北向的甬道。御路、甬道均为中间高两边低的形式,顺其地势,雨水能够直接从中间向两边排水。

如当太和殿的御路确定后,为使排水流畅,在铺砌地面前还要确定水流方向并找好坡度,将雨水汇集到东西两侧的排水明沟,又称荷叶沟内,引入院东南角的水沟门,经泊岸下的暗沟流入内金水河。

东西六宫诸院落基本为前后两进,院落之间有长街相间隔。甬道把院落分成两个排水区域,后院向前院排水,为使排水顺畅,预先需要确定前后院的水流落差坡度,俗称泛水。雨水自前院东西两侧水沟门经明沟,流入长街的暗沟内,再经支线汇入干线总汇于内金水河。
因为殿宇楼阁、假山亭台、鱼池花木的存在,御花园是故宫排水最复杂的地方。具体做法是先以御路将御花园分为东西两个排水渠,其间再细分若干小排水渠。以每个小区域的最低点作为暗沟的入水口。暗沟相互连通,再与园外干沟贯通,形成地下排水网络。

——多条纵横沟渠内外排水——
在故宫北城墙内、红宫墙外,即东西联房前,有一条东西向的大干沟,深约1.5米,宽约六七十厘米。上盖长方形石板,每隔20多块石板就有4块石板,两边凿出四个豁口,对在一起则是16个小洞,以便雨水漏入。沟西端与城隍庙内的金水河相通,雨水则泄入该处。东端则沿宫墙向南延伸,成为南北纵向干沟,雨水流入清史馆的金水河段。
除此之外,还有3条南北纵横直接进入内金水河的沟渠。一条在东六宫冬眠和宁寿宫的夹道里,北通神武门内的纬沟,往南绕过御茶膳房往东,再往南注入文华殿东面的内金水河。其中又经分叉,西穿奉先殿南群房。由西南墙角穿出。自箭亭东侧往南,由文华殿西墙外注入内金水河。
第四条南北沟渠自乾清门院内的西南角穿出,横过内右门穿入养心殿南库,然后由南库穿出隆宗门外,往南折,至武英殿东面的断虹桥处注入内金水河。
另外,东一、东二、西一、西二长街等小巷内都有短距离的南北向纵沟,分别接通乾清门内和乾清宫后向东、西泄水的纬沟和各宫廷院落的纬沟,利用中央高、四周低、北部高、南部低和某些小沟的中间高、两端低的自然跌落,迅速将雨水汇总,排入内河,流出宫外。
