
引言
建筑师是幸运的,可以拿着别人的钱实现自己的梦想;也是痛苦的,各种制约的存在,往往让梦想实现得不是那么顺畅。但是想想唐僧西天取经,容易实现的梦想还能叫梦想吗?有时候实现梦想的过程才是最值得回味的,最好的风景就在路上。
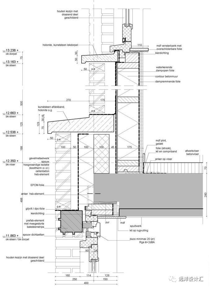
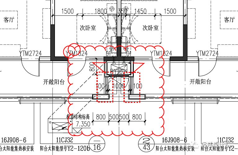
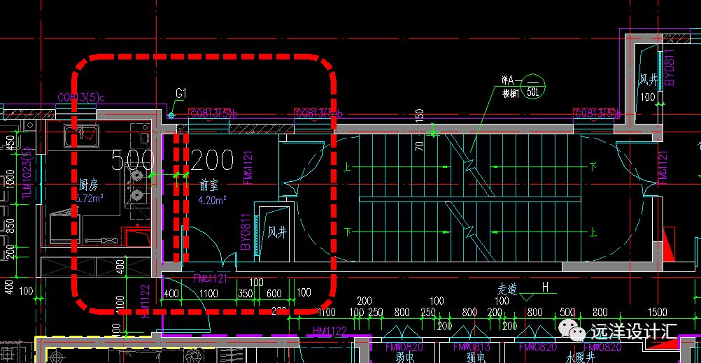
一、施工图设计是什么 最近几年房地产市场井喷式发展,建筑师似乎突然都忙了起来,随着房地产公司的“快周转”命令下达,“一天出图”似乎也不是遥不可及,但是我想做为一个经过正规建筑学教育熏陶的建筑师,多多少少都会有一些社会责任感的,有些在心里,有些在行动上,希望自己的作品能让周围的世界美好一点,这也许是很多很多建筑师的理想之一。但是有时候忙起来,就跟崔健的歌里唱的“不知不觉挣钱挣晕了把什么都忘了”,忘记了自己的每一笔都是要在大地上矗立百年的,省略了过程,忽略了内心深处的声音。 具体到建筑设计上,一般大家会认为方案才是设计、才是脑力劳动、才是创造,施工图只是死板执行规范,机械制图,体力劳动。特别是在目前的地产行业,方案和施工图往往是两个单位完成,施工图单位就想着按业主方确认的方案做就好了,沟通方案公司改图还要花时间,花这个时间我图都出完了,况且设计费也不高,要是能花点时间各专业好好对对图,业主你就应该多给加几个鸡腿了。但是这样对吗? ▲ 施工图应该用最少的内容表示清楚各种构造 材料以及材料之间的关系 那施工图设计到底是什么呢?我们可以把施工图当作一个建筑的施工说明书,是方案与施工单位沟通的媒介,是将方案翻译成施工单位能够理解的图示语言的过程,方案就是这本书的总纲,而施工图是文章的内容,总纲往往是概括性、理想化的,很多细节上考虑的不完整、不完善也是情有可原,如何通过内容完整的诠释总纲的精神,不让读者,也就是施工单位出现理解的偏差,同时在理解的基础之上,进一步提升书本的内涵,这只能在正文阶段,也就是施工图阶段解决,这不是程式化的机械制图可以解决的,这是方案落地的重要过程,是需要认真设计的。 ▲ 笔者绘制的某项目花格砖色彩组合施工图 ▲ 实景照片 二、什么是好的施工图设计 好的施工图,绝不仅仅止于在图面上清晰无误的表达各种构造、做法,更是需要通过对方案的二次设计,对方案进行完整的诠释,是方案补短板、去风险、增优化的重要过程。好的施工图不仅可以帮助方案更好的落地,减少施工过程中的设计变更,更可以助力建筑作品控制风险、提升品质、降低施工难度、减少无效成本,也可以在使用者角度,即使用者眼能及、手能触的部位,最大程度的体现设计的细节,是对方案理念的完美补充。 而这需要我们施工图建筑师真正做到匠人匠心,做到“每一寸都有设计”。 三、施工图的二次设计 笔者在平时工作中接触了大量的施工图纸,不同于一般外审机构对规范方面的的审查,以及施工图设计院内部的“一校三审”制度,除了对合规性和的图纸错漏碰缺进行评审,我们主要还是需要站在业主、施工单位与客户的角度,从控制风险、提升品质以及成本优化等方面对图纸进行评审,同时在不影响项目进度和品质的前提下提出解决方方案。 以下结合一些在施工图阶段通过二次设计对方案补短板、去风险、增优化的案例,说明施工图二次设计的重要性与价值所在。 1)补短板:建筑的构造细节,比如室外空调机位、集水坑、雨落管、幕墙分缝等部位都是方案容易忽略,但对建筑的立面、室内效果、使用者的感受都有较大的影响的部位,这些都需要施工图阶段充分考虑解决。 ● 此项目大堂为精装修设计,但消防电梯的集水坑都设置在大堂内部,图纸设计从设备和结构专业角度来说没有问题,排水路由短,合理、合规,也避开了结构承台,可谓很舒服,但建筑专业作为龙头专业,只简单将其他专业的要求反映在图纸上,没有考虑集水坑的实际实施效果对后期装修、客户感受的影响,如照此实施,集水坑盖板及配套的排污立管、阀门、配电箱对后期入户大堂装修影响极大,后期精装要付出很大的代价,还不见得能达到想要的效果(一般集水坑实际效果见照片)。 我们修改建议是将集水坑挪到剪刀梯下,位置隐蔽,对公共区域的影响也能降至最小。 ● 这是一个很常规的底商屋顶平面图,施工图单位还很细致的设置了混凝土墩,标示出了商铺空调室外机的位置,但是要是建筑师是二层的住户,会喜欢这样的房子吗?前后被空调室外机包围,视线及噪声的干扰另说,还时不时会有检修空调的工人在房子前后出入,对住户隐私有很大的干扰。最后的修改建议是将室外机放置在商铺靠小区一侧墙面上进行安装,同时用百叶进行遮挡,不影响商铺的主立面,也便于检修,同时对住户的干扰降至最小。 ● 从以上例子可以看出,画施工图的建筑师不光是要合理综合的各专业需求,还要真正起到专业龙头的设计作用,要关注细节,对最后完成的效果有一定的预判能力,需要合理设计,了解其他专业特点,协调其他专业,以呈现最好的效果?;际焙蚨嗨伎剂椒种?,可能就会给业主方避免很大的经济与时间损失,也能减少不少工程的遗憾。先思考,不要把自己的位置降低,才能得到大家的认可和尊重。 2)去风险:方案一般只注重大效果,而具体到户与户之间的关系等较为细节的问题往往容易忽略,但因为往往涉及到隐私、安全等问题,这些都需要在施工图阶段解决。 ● 这是两个毗邻的户型,光从图纸来看,质量还是不错的,表达清晰明确,还考虑到了标注分户空调的竖向隔板,但是仔细一看,开敞阳台间距就一米,中间还有结构连梁,室外空调机位百叶向外开启,两户的空调检修都要爬到连梁上开启百叶进行操作,这是鼓励两家串门增加互动?显然存在较大的对视及攀爬问题,影响毗邻户型的私密性及安全性。我们最后提出的解决方案是在虚线部位增设磨砂玻璃,同时在两户阳台内增设空调检修门。 ● 这是一个豪宅图纸,设计费很高,外方图纸相当细致,但是细节之处有很多考虑欠妥之处,比如下图,因为立面的原因,马桶外直接为落地玻璃,且卫生间毗邻主要入口,直接对着主入口院子,第一次提出建议,外方提出开启扇下部固定扇改为磨砂玻璃,但是也较为不妥,因为夜晚卫生间内部亮灯时也会有人影可见,我们最后建议在玻璃内侧设置能够遮蔽视线的实体窗台,或采用不透光的背漆玻璃进行视线遮挡。 建筑师也是用户,如果建筑师从用户角度换位思考,设身处地的站在别人的角度想一想,就不会出现此类明显不合理的问题,发现问题了,通过合理的设计去解决方案阶段没有考虑到的问题,是否也能体现出施工图建筑师的价值所在呢,解决这些非常细节的问题,也不增加图纸的工作量,既然都做了,为什么不做到最好? 3)增优化:如果涉及到住宅、公寓等产品,各种尺寸往往是需要分毫必争的;做法、构造也应该做到合理有效,方案往往不会对具体的墙体、开门等细部以及具体的构造做法进行设计,这也是施工图阶段应该考虑的问题。 ● 这是一个住宅的剪刀梯,似乎没有问题,但仔细一看,左边的楼梯前室应该4平米就够,似乎大了点,另外门是不是可以和剪刀梯右边的门一样设置呢,这样前室又能多一些面积,多出的面积为什么不给左边的住户呢?于是稍微调整一下,发现如果将多出的面积给左边的住户,剪刀梯的墙体可以向右边移动500mm,半米?。≌飧鲂〕靠梢苑畔乱桓鏊疟淞?,完全是质的改变。 ▲ 原始平面 ▲ 修改后平面 ● 这是一个地下室顶板防水做法,防水层做法采用“4厚SBS耐根刺防水卷材+2厚聚合物水泥防水涂料”,似乎比较合理,“耐根穿刺卷材+皮肤式防水”的做法,满足一级防水要求同时采用JS聚合物水泥防水涂料成本还比较低,而且防水涂料作为皮肤式防水效果还好,给甲方考虑得很周到,相当极致节约成本了。 但是仔细看就有些问题了,首先两种材料一种属于沥青基材料,一种是以有机高分子聚合物作为主要基料,属于不同材质,材性无法匹配且不相容。另外,下层的聚合物水泥中的有效防水物质是有机高分子聚合物乳液,会在高温下失效,而SBS耐根刺防水卷材需要热熔施工,因此会对下层的聚合物水泥防水涂料造成破坏,造成防水失效。我们建议把下面的JS聚合物水泥防水涂料改成非固化橡胶沥青防水涂料,虽然增加少许成本,但能解决相容与高温失效的问题,真正起到一道防水的作用。 ▲ 原做法 ▲ 防水厂家出具的说明文件 在目前住宅高单价的情况下,尺寸可谓分毫必争,增加300或者500的开间,有时就能让住户的居住品质有质的提升。对建筑师来说,有些冗余是没有错的,但站在客户或者建设方的角度,这是极大的面积损失,这需要建筑师在施工图阶段细致的设计以及对规范下限的熟练掌握。同时,能让各种材料恰当合理的使用,呈现出项目想要的效果,这也是设计。 对材料的了解与掌握也应该是施工图建筑师的基本功,材料、构造的问题不是实时显现的,而错误是可以复制的,如果一次错误没有被发现,若干年后呈现出来不好的后果,而此时错误的做法已经复制到很多项目上,只能补救,这是不是对自己项目的最大不负责任?节约成本不代表希望无效成本,谁都不希望有这种结果吧。 四、施工图建筑师能做什么 以上都是随便选取的几个例子,对绘制施工图的建筑师来说可能都是习惯使然、顺手为之。就和前一段时间北京大学景观设计学研究院副院长李迪华的文章《经过几十年的城市建设,我们终于变得寸步难行》描述的一样,没有经过设计、仔细斟酌的各种不合理也我们居住的环境充满了遗憾。 ▲ 李院长文章案例 结合目前上海、深圳市开展的工程总承包企业编制施工图设计文件试点,施工单位都可以画施工图了,从逻辑上分析,施工单位比施工图设计院有钱、有大量的配套厂家资源、懂工程、懂施工、有成本意识,而且为了减少后期维护的投入与风险,有优化施工图、提高工程效率的意愿,而这些都是施工图设计院所缺乏的。 如果施工图设计院还是停留在机械的翻方案图上,设计人员自甘成为画图流水线上的“工人”,不去主动了解工程、客户、材料、成本,“闭门造车”的结果只会是最后的图纸漏洞百出,让施工单位头疼不已,让建设单位不断超支,靠着几个图章和政策?;ど娴睦投芗筒凳俏薹ǔぞ玫?。 ▲ 八十年代的施工图工作室 ● 可以想见未来,没有工程、成本、用户思维,在施工图阶段主动对方案进行二次设计的建筑师是没有什么出路的。通过施工图阶段的二次设计,施工图可以真正起到方案与实施过程的无缝对接作用,让建筑师的方案不再走样,成本不再超支,有更高的完成度,这是施工图的意义所在。 五、结语 每一个建筑师都希望给自己的作品没有遗憾,这需要极致的用心,用好施工图二次设计这个工具,同时建立在经验的积累与标准化基础之上,是完全可以实现的,对住宅类等功能相对简单的项目,通过标准化的抓手,完全可以做到固化一些好的做法、好的细节,而且高质量的施工图,可以减少施工图建筑师的现场沟通时间,减少设计变更,对提高设计工作的总体效率还是有所促进的,工作效率的提高意味着建筑师的单位产出的提高,收入也会随之提高,这从理论上是可以实现良性循环的。 不管在欧美还是日本,我们都可以看到很多背景化的建筑,很平常,但所有的细节值得回味,平常的建筑也能体现设计的价值,实现参与其中的人们的理想。拿来就干、经验主义、自我中心的建筑师们是不是需要认真的进行一下反思? ▲ 美国随拍 让我们周围的世界变得美好一点,到老了可以带着小孩自豪的说这是我们的作品。这时代给了建筑师、给了我们房地产从业者太多的机会,希望我们都能不忘初心,虽有遗憾,但是幸好,我们还有未来。 来源:远洋设计汇(ID:Sinooceanland-Design),如有侵权,请联系删除。
















