厦门桑拿品茶工作室,福州鸡街小胡同,厦门茶楼信息网论坛

首页 行业动态 行业动态

山东省发起组织规划师建筑师设计师下乡参与美丽村居建设活动

来源:本网站 发布日期:2018-07-27 浏览量:1649

山东省住房和城乡建设厅关于组织规划师建筑师设计师下乡参与美丽村居建设的意见 

各市住房城乡建设局(城乡建委)、规划局:

实施乡村振兴战略,是党的十九大作出的重大决策部署,是决胜全面建成小康社会、全面建设社会主义现代化国家的重大历史任务。今年中央一号文件明确提出,强化新建农房规划管控,保护保留乡村风貌,开展田园建筑示范,培养乡村传统建筑名匠。省委、省政府《关于贯彻落实中央决策部署实施乡村振兴战略的意见》,引导规划、建筑、园林、景观、艺术设计、文化策划等方面的优秀人才下乡,提升乡村规划建设水平。为贯彻中央和省委省政府关于乡村振兴决策部署,落实省政府办公厅《山东省美丽村居建设“四一三”行动推进方案》要求,推动城乡规划和建筑设计人才深入乡村一线,参与美丽村居规划设计建设,改善农村人居环境,为打造乡村振兴齐鲁样板贡献力量。经研究,决定组织全省规划师、建筑师、设计师下乡参与美丽村居建设活动。现提出以下意见:

一、参与美丽村居建设规划设计人员条件

(一)热爱乡村工作。具有投身乡村规划设计建设事业的积极愿望,具有乡村规划设计编制和建筑设计的实践经验,具有良好的职业道德和业务能力,认真严谨,踏实肯干的规划师、建筑师、设计师,能够保证一定的现场工作时间,包括驻村等。

(二)具有相应的乡村规划和建筑设计能力的单位和个人。具有城乡规划编制资质和建筑设计乙级以上资质的设计单位;具有城乡规划、建筑学或相关专业背景,包括但不限于规划、建筑、结构、园林、景观、地理、道路交通、市政工程、建设管理等专业领域,具有中级职称或大专以上学历的优秀青年规划师、建筑师、设计师。

(三)其他单位和团体。熟悉乡村情况、具有乡村工作经验的规划设计高校、科研院所或团体。

二、参与工作内容

(一)科学编制村庄规划。要深入乡村一线调查,广泛听取村民意见,积极开展乡村风貌研究,总结提炼村居特色;要尊重村居现有格局,坚持新建、改造、保护相结合,宜聚则聚、宜散则散、宜建则建、宜改则改、宜保必保,加快编制村庄规划、聚居点建设规划,重点做好村域发展条件综合评价,统筹规划布局村民聚居点,结合当地村民居住习惯和地形条件布置住宅建筑与院落,同步编制村居产业发展与增收、市政基础设施与公共服务、环境保护及建筑风貌、综合防灾等专项规划;统筹做好与土地利用、经济社会发展、环境保护、乡村旅游等规划衔接,到2020年实现村庄规划全覆盖。

(二)精心做好农房建筑设计。要以胶东、鲁中、鲁西南和鲁西北4大风貌区,胶东海滨、沂蒙山区和黄河滩区等10条风貌带和300个省级试点村为重点,精心做好农房建筑设计,坚持传承创新和彰显特色的农房设计理念,既注重农房单体个性特色,更注重村居整体错落有致,有序构建村庄院落、住宅组团等空间,科学配置农房功能空间;农房设计和建设要推广应用绿色节能新技术、新产品、新工艺,注重可再生能源利用设施与农房一体化设计,注重采用乡土材料、乡土手法,实现传统自然材料与现代建造工艺相结合,营造浓郁的乡土气息;开展“泰山奖·美丽村居建筑”设计大赛,征集具有地域特征和文化特色的农房设计方案,编制通用图集供广大农民免费选用;开展农房设计与建设试点,探索政府引导、村民自主、市场推动的建设方式,形成一批可复制、可推广的示范村、示范项目;加强农村建筑工匠队伍建设,组织开展相关培训,增强农村工程施工人员素质,提高全省农房设计和建设水平。

(三)精心指导美丽村居建设。省直和各市甲、乙级院具备条件的,可成立村居规划设计所,加强与县、乡(镇)政府、村庄等相关部门和单位沟通,分期分批在300个试点村全面推行驻场设计师制度,为乡村规划、建筑设计、住房修缮、危房改造、古村落保护等提供全过程服务。要根据农村生产生活特点,研究制定《美丽村居设计导则》《美丽村居建设导则》,编制《农民自建住宅工程通用设计标准》《农房建设适用技术结构体系》,指导村居设计与整体风貌相协调,体现地域、文化、生态的多样性,推动村居建设特色性、使用性和安全性和谐统一。严格落实农房建设建筑放样到场、基槽验线到场、施工过程到场、竣工验收到场的“四到场”制度。因地制宜,引导各地建设美丽村居与特色建筑修复、特色景观打造、特色古村落保护等相结合,注重保持独特风貌,把美丽村居建设成为记得住乡愁、留得住乡情的乐园。

(四)加强历史文化传承和保护。要注重保护村庄完整的传统风貌格局、历史环境要素、自然景观等,引导村民慎砍树、禁挖山、不占河湖水域、不拆有保护价值的房屋;要划定村居建设历史文化保护红线,以抢救保护濒危古建筑、保护古树名木、提高防灾能力为重点,做好历史文化名村和文物古迹、民族村寨、农业遗迹、灌溉工程遗产保护。传统村落要作为历史文化名村的后备资源实施保护,要保护好具有传统风貌和历史文化价值的历史性建筑,对符合历史建筑认定标准的建筑,依法公布为历史建筑,并建立历史建筑保护名录。

 三、保障措施

(一)强化组织协调。各级住房城乡建设、规划主管部门,要加强协调配合,上下联动,广泛征求乡(镇)、村居的整体规划、农房设计、历史文化遗迹和传统村落保护等方面服务需求,研究制定实施方案,精心筹划组织规划师、建筑师、设计师下乡参与美丽村居建设活动,编制《省规划建筑设计师下乡服务手册》,做好规划师、建筑师、设计师与县、乡(镇)、村居之间的对接工作。省里成立美丽村居建设专家委员会,聘请知名专家学者担任顾问,加强对全省美丽村居建设工作的指导。

(二)统筹安排活动。各市住房城乡建设部门要明确分管负责同志、责任部门和联络人,加强与规划设计、建筑设计单位协调,充分发挥设计单位和个人的积极性;设计单位可与省确定的美丽村居建设试点村建立联系点制度,定期组织规划师、建筑师、设计师开展活动,形成示范效应。省住房城乡建设厅将发布《山东省美丽村居设计师名录》,各地可优先从名录中选聘设计师。同时,适时组织省工程勘察设计大师、省优秀青年勘察设计师,深入村居现场进行专业指导。

(三)坚持市场化导向。设计单位和个人开展规划设计和建筑设计服务要遵循市场化规则,实行个人志愿和有偿服务相结合。县、乡(镇)政府采取购买服务的方式编制村庄建设规划和村居建筑设计,签订服务合同。经济条件好的县、乡(镇)和村庄采取列支财政预算、创新融资渠道、吸引社会资本等方式解决规划设计费用,保证按时拨付;经济条件薄弱的县、乡(镇)和村庄争取省政府美丽村居试点奖补资金支持,并做好服务合同执行和规划设计质量监督。

(四)加强舆论引导。各地通过报纸、电视、广播、网络等媒体,采取多种形式,全面宣传美丽村居建设的重要意义、政策措施、目标任务、方法步骤及设计师下乡活动情况,扩大规划师、建筑师、设计师下乡活动影响,为美丽村居建设营造良好的舆论氛围。

(五)完善激励措施。对积极响应号召、派出人才下乡提供服务的规划和建筑设计企业将在企业诚信档案中予以加分;志愿者下乡开展技术支持与服务工作实践,志愿服务期间继续教育学时换算按有关部门专业技术人员继续教育学时管理办法执行。志愿者在村居支援工作取得的专业技术业绩,可根据本地本部门实际作为参加职称评审、岗位竞聘、考核评优等的参考条件。省里适时对工作成效显著的设计单位和个人组织评选,予以表扬奖励。

四、联系方式

凡有志于为美丽村居建设提供志愿服务、符合条件的单位和个人均可以向各设区市住房城乡建设局(城乡建委)、规划局提出申请,填写《山东省规划师建筑师设计师下乡服务登记表》,一式三份,经所在设区市建设或规划主管部门审核汇总同意,报省住房城乡建设厅备案。

请各市住房城乡建设、规划主管部门分别汇总本地区报名情况,于2018年8月20日前将登记表电子版发送到省住房城乡建设厅。

联 系 人:省住房城乡建设厅勘察设计处,曲兴隆,0531-87080863;村镇建设处,贾蕊,0531-87086995;电子邮箱:quxinglong999@163.com。

山东省住房和城乡建设厅                

       2018年7月17日 



如果你是建筑设计师,你会怎么设计乡村住宅呢?今天给大家分享一个很热门的建房方式, 13万建这样一座单家独院,让你的生活从此有滋有味。


建房材料:EPS空腔模块

建房方式:EPS空腔模块现浇混凝土一体化


建房方式:EPS空腔模块现浇混凝土一体化

DK幼儿百科全书——那些重要的事

作者:英国DK公司

当当广告

购买


选择EPS模块建房的原因:

1EPS模块自身强度大,导热系数小仅为0.032w/m·k,节能效果明显;

2EPS模块本身B1级防火,结构性防火好;

3EPS模块建房子封堵了冷热桥,建筑物使用寿命长久;

4)抗震等级高,适用于抗震设防烈度8度及8度以下地区;

5)施工简便、操作灵活,建造过程中完全取代墙体各种砌块、浇筑模板、外墙保温材料;

6)建造周期短、综合性价比高,满足建筑节能与结构一体化技术要求;

7)施工过程无建筑垃圾产生,实现现场文明施工;

8)种类齐全、几何尺寸准确,材料损耗小;

9)非常适合在乡下建造冬暖夏凉的别墅。

EPS模块建房效果图

        本户型采用前主后副的方式,以一个小院子把生活和起居分开,分区明确,布局紧凑,平屋顶设计方便晾晒,交通路线组织符合农家生活习惯。


基本信息

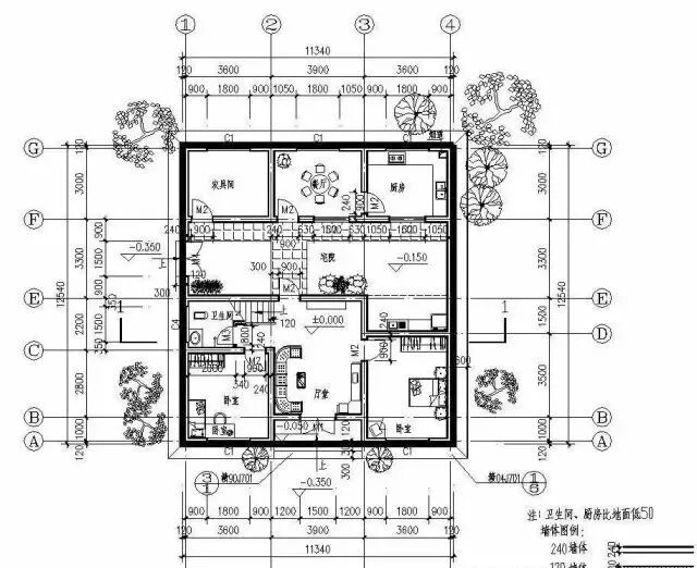
房屋进深:11.34mx12.54m

建筑面积:179.84㎡

毛坯房成型预计费用:13万(包括EPS模块、钢筋、混凝土、砂浆、网格布以及人工)

其中EPS模块预计费用:6万

一层平面图

        一层布局:厅堂、卧室x2、厨房、餐厅、卫生间、农具间

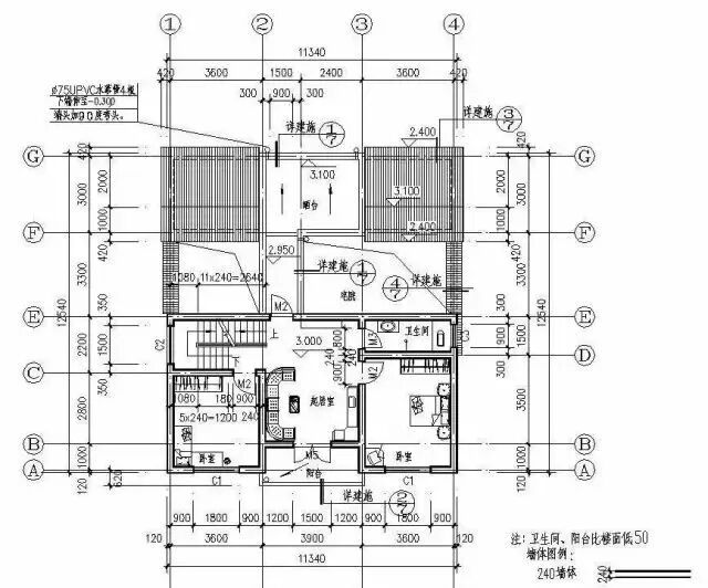
二层平面图

        二层布局:起居室、卧室x2、晒台

       真正的生活不在远方,家里也可以有诗和田野,只愿不负春光。

下面简单的说一下建房过程:

EPS空腔模块保温材料,不同的厚度,不同的规格,不同的保温性能,当然,不同的价格,你自己选择

现场在基础上进行EPS模块的砌筑即可


空腔内绑扎钢筋


空腔内绑扎钢筋

浇筑混凝土增加墙体的强度

当然,这样的工程是从基础开始做起来

现场EPS模块建房过程示意

现场EPS模块建房过程示意

现场EPS模块建房过程示意

现场EPS模块建房过程示意

现场EPS模块建房过程示意

现场EPS模块建房过程示意——窗洞口部位预留

现场EPS模块建房过程示意

现场EPS模块建房过程示意

现场EPS模块建房过程示意——楼梯采用预制的

现场EPS模块建房过程示意

现场EPS模块建房过程示意——楼板一般也可采用叠合楼板预制加现浇

现场EPS模块建房过程示意

现场EPS模块建房过程示意


现场EPS模块建房过程示意

现场EPS模块建房过程示意——安装屋架


现场EPS模块建房过程示意——屋面保温+防水

现场EPS模块建房过程示意——地面保温与新风管道铺设

EPS模块建造的房子是气密性很好的被动房,需要新风系统为室内带来新鲜空气

新风系统强调高热回收性能,因为你不能把室外的热空气或冷空气直接带到室内,还是得有预处理

有了新风体系,你才能过上舒适惬意的生活

门窗是外围护不可或缺的部分,既然用上了EPS模块建房体系,那么门窗的选择绝对不能将就

一扇高节能门窗产品为你的房子增加了不少两点,绝对让邻居另眼相看

把门窗安装好,整个房屋框架体系才算完工

当然你还需要做墙面找平和粉刷处理


经过了重重工序之后,一栋高科技的现代节能住房就建造成功了

这样的小房子绝对领先你周边几十公里以内的其他所有住宅


本文转载自微信公众号“绿建节能方向标”,如有侵权,请联系删除。

办事指南 下载中心 电子图纸 勘察设计质量监管平台
主站蜘蛛池模板: 虹口区| 湖南省| 合阳县| 普定县| 林芝县| 航空| 辽宁省| 左贡县| 神池县| 安丘市| 庆云县| 武宣县| 旺苍县| 石景山区| 勐海县| 泰来县| 开原市| 砀山县| 文安县| 兴和县| 罗甸县| 建宁县| 亚东县| 庐江县| 都江堰市| 开平市| 尼木县| 呼伦贝尔市| 潮州市| 桂林市| 霍城县| 柯坪县| 呼图壁县| 满城县| 两当县| 广州市| 涟源市| 贵溪市| 宁晋县| 广宁县| 阿拉尔市|